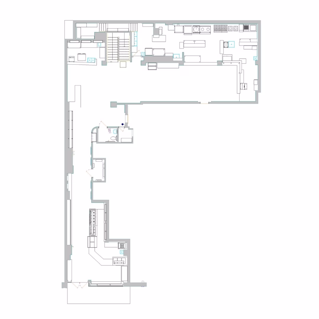
Why Precision is Your Best Risk Mitigation Strategy
A single measurement error at the start of a project can cascade into a million-dollar mistake during construction. Archidata Services specializes in eliminating this uncertainty by providing highly accurate as-built plans that reflect the true state of your physical structure. Our team uses advanced scanning technology to ensure your project begins with a foundation of facts rather than assumptions.
Avoiding Costly Rework and Change Orders
Relying on outdated blueprints often leads to unexpected field conditions that halt progress and inflate budgets. Accurate as-built drawings that construction professionals depend on prevent these “surprises” by identifying structural realities before the first hammer swings. By investing in precise documentation early, you avoid the high costs of mid-project rework and keep your margins intact.
Ensuring Seamless Integration for Renovations
Modern construction requires millimeter precision, especially when fitting new designs into existing historical or complex spaces. Our professional as-built drawings capture every intricate detail, ensuring that pre-fabricated components and new installations fit perfectly the first time. This level of detail reduces onsite adjustments and ensures that your design intent is fully realized without compromise.
Streamlining Communication Across Project Teams
Clear and reliable data acts as a universal language for architects, engineers, and contractors throughout the project lifecycle. When everyone works from the same set of verified as-built plans, the likelihood of conflicting instructions or design clashes is significantly reduced. Archidata’s lean methodology ensures this data is delivered efficiently, fostering trust and collaboration among all stakeholders.
Securing Long-Term Facility Management
The value of high-quality documentation extends far beyond the initial construction phase and into the life of the building. Having a precise digital record simplifies future maintenance, tenant improvements, and compliance with BOMA or REBNY standards. Our comprehensive approach ensures that your data remains a reusable asset that adds value to the property for decades to come.
Ask for a Demo
Skipping the verification of your building’s current state is a gamble that few projects can afford to take. At Archidata Services, we believe that transparency and accuracy are the keys to a stable and successful build. Contact us today to see how our precision scanning can safeguard your next project.



